Asunto Oy Turun Skala, A12-13

Tietoa asunnosta

A12-13 2/5. KRS
Huoneiston tyyppi: 5-6h+kt+s
Koko: 142,5 m2
Parveke
Sauna

Arvioitu valmistuminen 8/2027

Myyntihinta: 210 949 €
Lainaosuus: 330 851 €
Velatonhinta: 541 800 €

Hoitovastike: 634 €/kk
Pääomavastike 1: 881 €/kk
Pääomavastike 2: 1596 €/kk

Varauksia: Ei
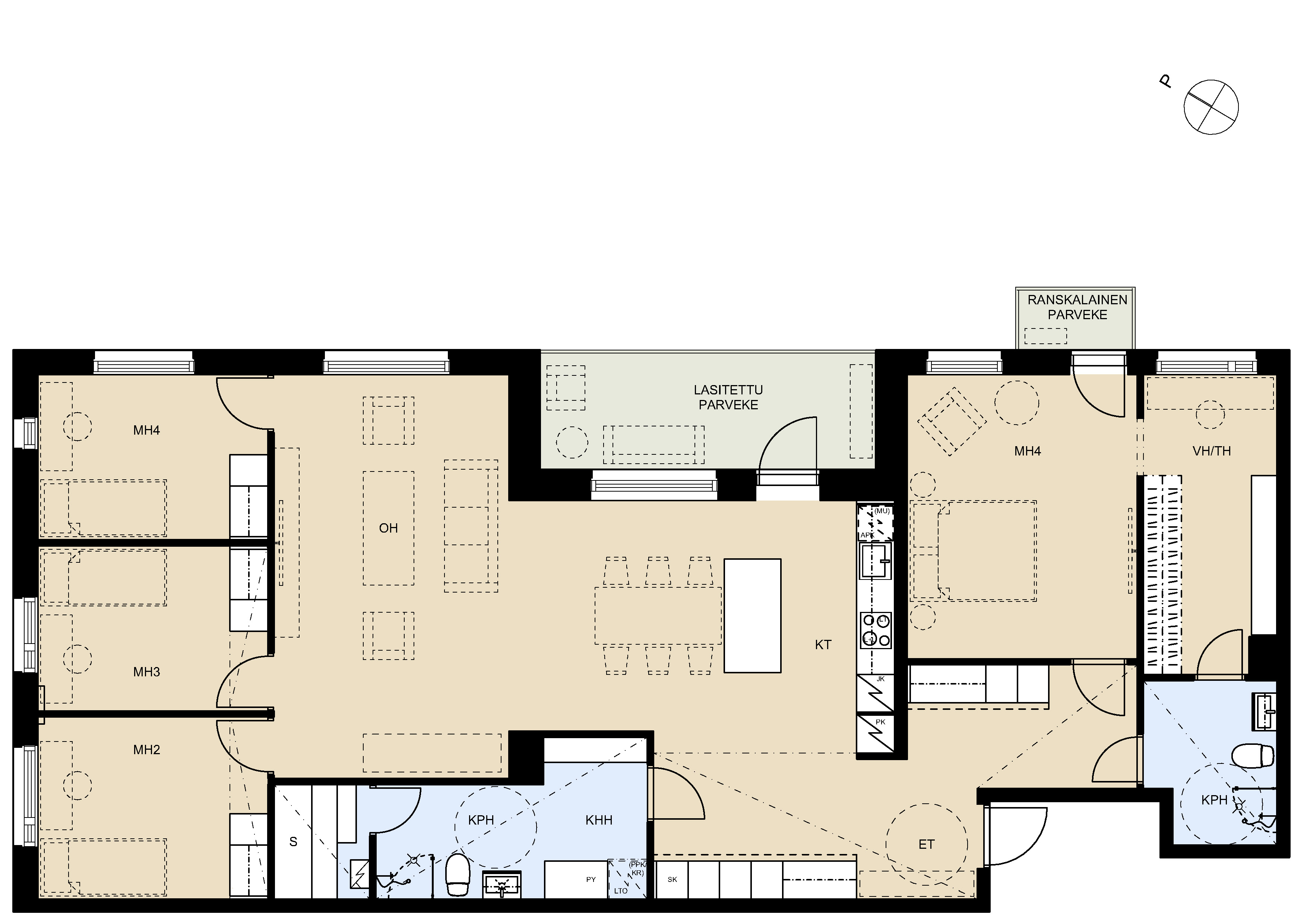
Tämä koti tarjoaa kolme erilaista pohjaratkaisua, joista voit valita elämäntilanteeseesi parhaiten sopivan. Voit valita valmiiksi suunnitelluista asuntopohjista sinulle mieluisimman tai voit myös yhdistellä valmiista pohjista juuri sinulle sopivan pohjaratkaisun. Tämänkaltainen asunto on mahdollista toteuttaa kerroksiin 2-5. Tämä koti tarjoaa runsaasti tilaa isommallekin perheelle: tarvitset sitten neljä tai viisi makuuhuonetta, erillisen työ- / vierashuoneen tai ison vaatehuoneen, tämän asunnon pohja taipuu useaan erilaiseen tarpeeseen. Ensimmäisessä vaihtoehdossa on iso, omassa rauhassa oleva päämakuuhuone, jonka yhteydessä oleva tilava vaatehuone tuo luksusta ja toimivuutta arkeen. Kaksi suihkullista kylpyhuonetta, helpottavat kiireisiä aamuja. Keittiön saareke kutsuu kokkaamaan ja kokoontumaan yhteen. Toisessa vaihtoehdossa päämakuuhuoneen vieressä on huone, joka toimii esim. vieras- tai työhuoneena. Kolmannessa vaihtoehdossa päämakuuhuoneen yhteydessä on tilava vaatehuone. Muuten asunnossa on samat toiminnot kuin edellisessä vaihtoehdossa.

Katso tarkemmat laina- ja maksuehdot
VARAA

Kuvat ja videot

Turun Skalan yhdistelmäasunnon pohjakuva vaihtoehto C
Asunnon A12-13 yhdistetty asuntopohja

KATSO KAIKKI KUVAT

Lataa ja tulosta pohjakuva

Taloyhtiön ladattavat materiaalit

  • Lataa

    Esite

    Lataa
  • Lataa

    Sisustusmateriaalit

    Lataa
  • Lataa

    Asemapiirros (pdf)

    Lataa
  • Lataa

    Julkisivut (pdf)

    Lataa
  • Lataa

    Kerrospohjat (pdf)

    Lataa
  • Lataa

    Rakennustapa- ja talotekniikkaselostus (pdf)

    Lataa

Taloyhtiön muut asunnot

Luonnoskuva Turun Skalan julkisivusta kadulta päin katsottuna
Luonnoskuva

Turun Pukkila kehittyy vauhdilla

Turun Pitkämäkeen rakentuva Pukkilan alue on yksi kaupungin merkittävimmistä kaupunkikehityshankkeista. Entisestä tehdasalueesta kasvaa uusi houkutteleva asuinalue, jossa yhdistyvät teollinen perintö, tiivistyvä kaupunkirakenne ja kestävän suunnittelun tavoitteet.

Lue koko artikkeli
Luonnoskuvanäkymä Turun Pukkilan asuntokohteen olohuoneesta
Luonnoskuva

Tilavien uusien kerrostaloasuntojen mentävä aukko

Kiinteistövälittäjä Petri Ingmanin mielestä ”normihintaisille” asunnoille voisi hyvinkin olla kysyntää niin nuoren, työssä käyvän kuin vanhemmankin sukupolven keskuudessa. Omakotitalosta kerrostaloon muuttava haluaa ehkä avaran olohuoneen, jonne mahtuvat lapset perheineen kylään, sekä kunnon säilytystilat ja reilun kylpyhuoneen.

Lue koko artikkeli
Luonnoskuva

Tutustu kehittyvään Pukkilan asuinalueeseen

Pukkila on Turun uusi, viihtyisä asuinalue, joka yhdistää modernin kaupunkiasumisen ja vehreän ympäristön parhaat puolet. Täällä asut rauhallisten kortteleiden keskellä, lähellä palveluja ja erinomaisia liikenneyhteyksiä.

Alueelle rakentuu monipuolinen kokonaisuus moderneja kerrostaloja, toimivia palveluja ja houkuttelevia ulkoilumahdollisuuksia – kaikki vain lyhyen matkan päässä keskustasta.

lue lisää alueesta

Laadukkaita koteja tuleville sukupolville

Valokuva, jossa kaksi lasta pyöräilee hiekkatiellä kypärät päässä

Turun Skala

Asumisella on suuri merkitys siihen, millaisessa maailmassa elämme nyt ja tulevaisuudessa. Me Hartelassa haluamme olla mukana luomassa parempia koteja ja rakentamassa laadukasta elinympäristöä. Siksi panostamme energiatehokkaisiin ratkaisuihin, pitkäikäisiin ja huolella valittuihin materiaaleihin sekä suunnitteluun, joka tukee fiksuja valintoja arjessa.

 

Meille on tärkeää, että kotisi on viihtyisä, toimiva ja hyvin suunniteltu – paikka, jossa on hyvä elää sekä tänään että tulevina vuosikymmeninä. 

ENERGIATEHOKKUUS

Turun Skalan energialuokka on A2018.

ENERGIATEHOKAS ILMANVAIHTO

Asuntokohtainen ilmanvaihto lämmöntalteenotolla mahdollistaa korkeatasoisen energiatehokkuuden.

Sähköauton latauspisteet

Pysäköintihallissa sähköautojen latauspisteet on mahdollista toteuttaa rakentamisaikana lisätyönä. Järjestelmä varustetaan dynaamisella kuormanhallinnalla, joka säätää lataustehoa automaattisesti.

Uusiutuva sähkö

Skalan työmaalla käytetään uusiutuvaa sähköä. Teemme uusiutuvan sähkön sopimuksen myös kiinteistösähköstä.

YHTEISET TILAT

Asukkaiden käytössä on monipuoliset yhteistilat, kuten saunaosasto, pyörä- ja irtainvarasto sekä kuivaushuone. Taloyhtiön sisäänkäynnin yhteydessä löytyy pesupiste esim. kuravaatteille tai lemmikin tasuille .

VALAISTUS

Asuntojen, yleistilojen ja ulkotilojen valaistukset toteutetaan LED-valaisimilla. Käytävien, porrashuoneiden ja yhteisen tilojen valaistus ohjataan automaattitunnistimilla, mikä säästää energiaa.

Hartelan työntekijät valmistuvassa kohteessa

Näin uuden asunnon ostaminen etenee

Tutustu asunnon ostamisen vaiheisiin ja huomaa itse, kuinka vaivaton on matkasi uuteen kotiin. Ja jos joku asia askarruttaa, ota yhteyttä – autamme mielellämme!

OTA ASKELEET UUTEEN KOTIIN
  • Ennakkomarkkinointi; mitä silloin tapahtuu?

    Ennakkomarkkinoinnin aikana markkinoidaan asuntoja, joiden rakentaminen on tarkoitus aloittaa lähitulevaisuudessa. Tänä aikana voit varata itsellesi mieluisan asunnon.

     

    Ennakkomarkkinoinnin avulla selvitämme, millainen kysyntä tulevilla asunnoilla on. Tämän tiedon pohjalta päätämme aloitammeko rakentamisen.

     

    Ennakkomarkkinointivaiheessa meillä on talosta jo suunnitelmat valmiina sekä alustavat asuntokohtaiset tiedot, kuten asuntopohjat, hinnat, sisustusmateriaalivaihtoehdot ja rakennustapaselostus.

  • Miten varaan asunnon?

    Löydettyäsi mieluisan asunnon ole yhteydessä Hartelan asuntomyyntiin tai tule esittelyyn! Voit varata asunnon myös suoraan taloyhtiön verkkosivulta, jonka jälkeen myyjämme on sinuun yhteydessä. 

     

    Allekirjoittamalla varaussopimuksen asunto pidetään sinulle varattuna sitovaan asuntokauppaan saakka. Voimme lähettää sopimuksen sinulle sähköisesti allekirjoitettavaksi tai perinteisen postin välityksellä palautuskuoren kera. Varaussopimuksen vakuudeksi maksetaan varausmaksu.

  • Onko varaussopimus sitova?

    Varaussopimus ei ole sitova. Maksettu varausmaksu palautetaan sinulle, mikäli et ostakaan asuntoa.

  • Mihin asti varaussopimus on voimassa?

    Varaussopimus on voimassa myynnin aloitukseen saakka. Myynti alkaa, kun RS-turva-asiakirjat kuten taloussuunnitelma, rakennuslupa, rakennustapaselostus ja vakuustodistukset ovat RS-pankin säilytettävinä ja rakentaminen voi alkaa.

Ota meihin yhteyttä

Kiinnostuitko Asunto Oy Turun Skalasta?

Jätä yhteystietosi ja olemme sinuun yhteydessä. 

JÄTÄ YHTEYSTIEDOT

Samankaltaisia yhtiöitä

;

Sivuilla esitetyt visualisointikuvat ovat luonnoskuvia kohteista, eivät kuvauksia yksityiskohdista tai väreistä.

Visualiointikuvissa voi esiintyä myös lisähintaisina muutostöinä tilattavia materiaaleja.